Club Marginal Architekten
Fluct Office
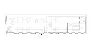
Umbau Remse Berlin Kreuzberg
Fluct Office
Am quirligen Schlesischen Tor gelegen, in der Remise einer ehemaligen Nähmaschinenfabrik, befindet sich das Büro von Fluct. Hier werden internetbasierte Systeme zur Unterstützung von Kommunikations- und Unternehmensprozessen entwickelt. Die in einem gemeinsamen, intensiv geführten Dialog entwickelte und schließlich „auf Maß geschneiderte“ Büroeinrichtung veranschaulicht auf vielerlei Weise die Denk- und Arbeitsweise der jungen Kreuzberger Firma.
Fotos: Waldemar Salesski
Fluct Office was featured on:
Divisare
Architizer
JavaScript is turned off.
Please enable JavaScript to view this site properly.