Club Marginal Architekten
Gustav Lux, T. 2
Dachgeschossausbau in Berlin Mitte
Gustav Lux, T. 2
Dachgeschossausbau in Berlin-Mitte
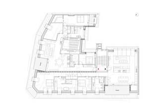
Der Maurermeister Gustav Lux erwarb einst das Eckgrundstück in der Rosenthaler Vorstadt und bebaute es 1905 mit einer 5-geschossigen Mietskaserne. Knapp 120 Jahre später wurden die ehemaligen Trockenböden des Dachgeschosses zu zwei, jeweils etwa 140 m² großen,
Wohnungen umgebaut und im Hof zudem ein Aufzug angebaut.
Die hier gezeigte „Wohnung 2“ verfügt über drei Schlafräume und zwei Bäder. Durch den großen, zentral gelegenen Raum der Wohnküche, dem eine Dachterrasse vorgelagert wurde, gelangt man zum rückwärtigen, privateren Bereich der Wohnung, wo sich, zum Hof hin gelegen, das Hauptschlafzimmer mit einer weiteren kleineren Terrasse befindet.
Alle Böden und die Wandbeläge der Bäder wurden mit demselben Fliesenbelag versehen. Die grobe, unregelmäßige Körnung des Materials ist für die Wohnung charakteristisch und steht im Kontrast zu den glatten, weißen Wand- und Deckenflächen und den ebenfalls ganz in weiß gehaltenen Einbaumöbeln. Es entstand eine ruhige und zurückhaltende Architektursprache, die durch einige Akzente, wie der anthrazitfarbenen Küche, ergänzt wird.
Leistungsphasen 1-8
Fotos: Club Marginal Architekten
JavaScript is turned off.
Please enable JavaScript to view this site properly.