Club Marginal Architekten
Wohnung eins
Dachgeschossausbau in Berlin Mitte
Wohnung eins
Dachgeschossausbau in Berlin-Mitte
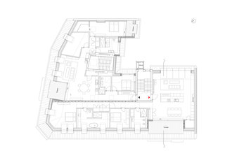
Das Dachgeschoss des 1905 in der Rosenthaler Vorstadt errichteten Eckgebäudes wurde zu Wohnzwecken neu aufgebaut. Es entstanden zwei Wohneinheiten, die über einen im Hof neu angebauten Aufzug erschlossen werden.
Die hier gezeigte Wohnung 1 besteht aus einer großen Wohnküche mit vorgelagerter Dachterrasse und einem privateren Teil, der Schlafräume und Bäder aufnimmt.
Der große durchgesteckte Raum, über den die Wohnung betreten wird, ist in der bauzeitlich typischen Form eines „Berliner Daches“ ausgebildet und wird durch ein freistehendes, halbhohes Einbaumöbel in einzelne Nutzungsbereiche unterteilt. Dieses zentrale Element der Wohnung, nimmt in sich gleich mehrere Funktionen, wie Garderobe, Bücheregale und die Küche auf. Zur Seite der Terrasse hin befindet sich hier ein offener Kochbereich mit Essplatz, gegenüberliegend davon, der Wohnbereich mit Kamin und einem in der Schrägdachebene integrierten Panoramafenster.
Die Böden der gesamten Wohnung bestehen aus mit gestockter Oberfläche versehenden Nagelfluh, einem heimisch vorkommenden Naturstein. Wände und Decken wurden mit einem atmungsaktiven Lehmputz versehen, bzw. mit Lehm gespachtelt. Die Oberflächen sämtlicher Einbaumöbel bestehen aus geölter Eiche und Edelstahl.
Leistungsphasen 1-8
Interior Concept Design: T/Sehne Studio
Fotos: Volker Conradus
JavaScript is turned off.
Please enable JavaScript to view this site properly.